尊敬的參會嘉賓:
您好!
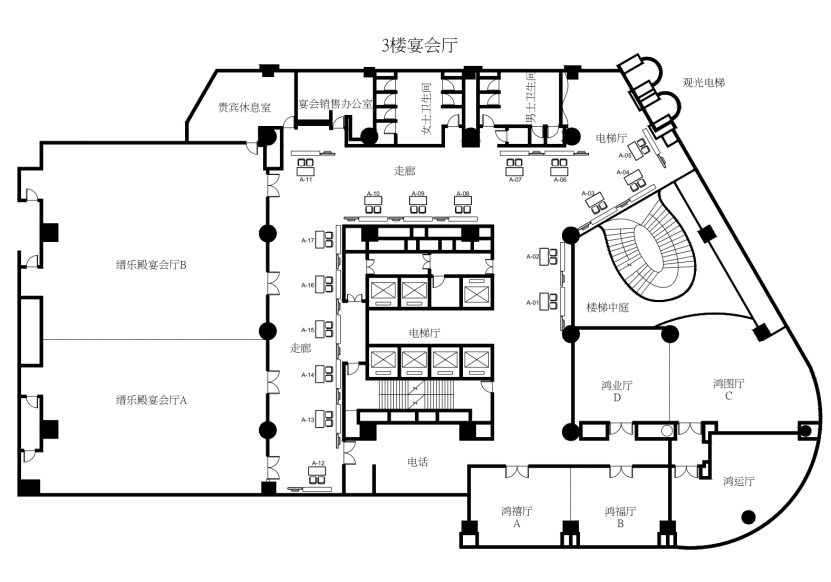
2023第二屆虛擬運營商渠道大會即將如約而至。會議將于4月20日上午9:00在重慶市渝中區中山三路139號重慶希爾頓酒店舉行。會議當天請憑借入場證入場。(酒店大堂有電子指引牌,進大廳乘電梯到三層,根據指引牌箭頭指示即可找到會場~)
您可參考以下示意圖有序入場:

大會日程
4月19日 14:00--17:00
號卡與增值服務運營閉門會——三樓縉樂殿宴會廳A廳
隱私保護服務運營閉門會——三樓縉樂殿宴會廳B廳
物聯網服務運營閉門會———三樓鴻圖鴻業廳
4月20日 9:00--16:30
第二屆虛擬運營商渠道大會——三樓縉樂殿宴會廳
酒店停車情況
由于停車位緊張,參會者需自行安排停車地點,建議打車或乘坐公共交通到現場。
天氣情況
4月18日,20-30攝氏度,小雨轉多云,北風2級;4月19日,20-31攝氏度,多云,東北風2級;4月20日,19-24攝氏度,東風 1級。您可根據自身行程安排攜帶短袖、外套等衣物和雨傘。
